WALNUT CREEK, CA

Townhouse Renovation

Full-Service Residential Design Walnut Creek · CA

Townhouse Renovation —
A 1970s Home Reconsidered

A full interior renovation of a 1970s townhouse in Walnut Creek — a compartmentalized layout restructured for contemporary living, with zebra wood cabinetry, black marble details, and a biophilic primary bedroom designed to receive the morning light.

The Brief

The home had good bones and a quality that many 1970s townhouses share — solid construction, generous ceiling heights, and a relationship to the outdoors that had never quite been realized. What it lacked was flow. The kitchen sat apart from the living areas. Rooms that could have worked together were organized instead as separate compartments, each functioning in isolation.

The homeowners wanted a home that felt as considered as their own lives — connected, calm, and effortless to move through. A place that worked equally well for a quiet morning alone and an evening with people gathered around the kitchen.

The Design

The kitchen became the starting point. A southeast-facing window was enlarged to capture the view of the surrounding hills and trees — bringing the landscape into the room and drawing natural light deeper into the space. Zebra wood custom cabinetry, integrated appliances, and a custom coffee bar were designed as a unified composition rather than a collection of separate elements. The kitchen now feels purposeful without feeling precious — a room that holds the morning as easily as it holds a gathering.

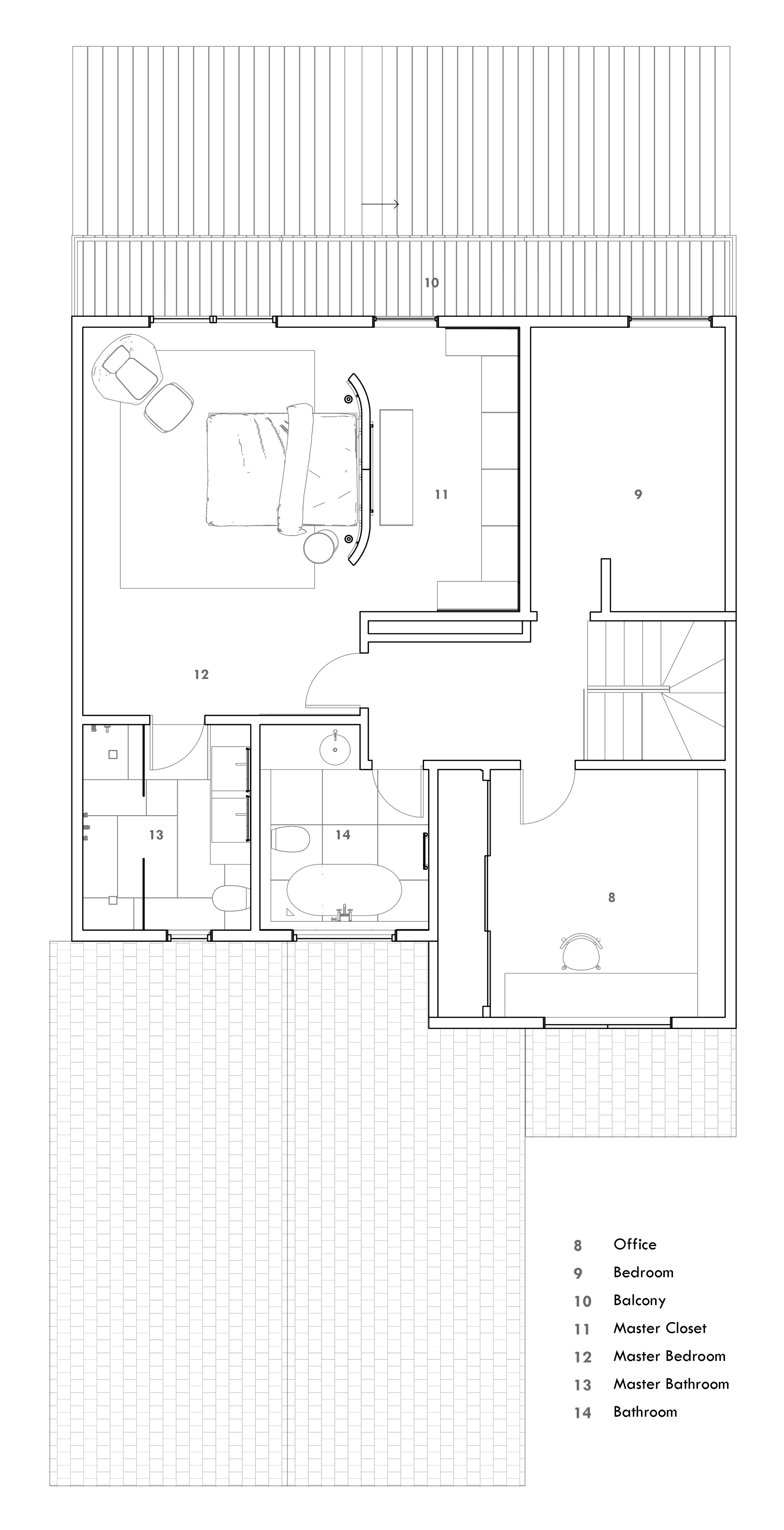
The primary bedroom was designed around its north-facing balcony — a biophilic approach that brings the rhythm of natural light and air into the most private space in the home. A custom walnut bed and bedhead double as a room divider, separating the sleeping area from the walk-in closet without closing either off. The result is a room that feels layered and resolved — calm enough to sleep in, considered enough to begin the day well.

The primary bathroom was organized around its south-facing window. A floating double vanity cabinet was positioned to preserve that light entirely — the window remains unobstructed, and the room feels larger than its footprint. A double shower completes a bathroom that functions as a genuine retreat within the home.

The powder room was given a completely different character — black marble throughout, in a room small enough to be dramatic without being overwhelming. It is one of the quietest demonstrations of a principle that runs through the entire project: that a small space, resolved with precision, can be as compelling as a large one.

Key Materials
  • Zebra wood custom cabinetry — kitchen
  • Custom coffee bar with integrated appliances
  • Enlarged southeast kitchen window — hill and tree views
  • Custom walnut bed and bedhead — primary bedroom
  • North-facing balcony — biophilic bedroom design
  • Floating double vanity cabinet — primary bathroom
  • Double shower — primary bathroom
  • Black marble — powder room, floor to ceiling
The Outcome

A 1970s townhouse that now moves with the ease of a home designed from the ground up for contemporary living. The kitchen opens toward the hills. The bedroom receives the day gently, through a balcony designed for it. The powder room stops people in their tracks — not because it announces itself, but because it is exactly right for what it is.

Each space carries a quiet confidence that comes from resolving every decision in relation to the whole — from the enlarged window to the placement of a floating vanity to the choice of a material dark enough to make a small room feel intentional rather than incidental.

Studioayse · Full-Service Interior Design · SF Bay Area Begin a conversation →